Marcos Rocha Vianna
Engenheiro civil, doutor em Saneamento, Meio Ambiente e Recursos Hídricos. Professor aposentado do ERH da Escola de Engenharia da UFMG.
Mariana Lopes Cabral
Química. Funcionária da Prefeitura Municipal de Monte Alegre de Minas.
Priscilla Tannús Assunção
Bióloga. Funcionária da Prefeitura Municipal de Monte Alegre de Minas.
Nota: Este artigo foi originalmente apresentado no 47º Congresso Nacional de Saneamento da ASSEMAE, realizado de 19 a 23 de junho de 2017 em Campinas, SP
RESUMO
Ao ser posta em marcha, uma estação de tratamento de água recém-adquirida, através de licitação, pela Prefeitura Municipal de Monte Alegre de Minas, estado de Minas Gerais, apresentou desempenho insatisfatório. Os flocos formados não apresentavam as condições esperadas nas saídas dos floculadores, os decantadores não eram capazes de reter os flocos que lhe eram encaminhados e os filtros precisavam ser lavados com muita frequência. Procedeu-se à análise detalhada de cada uma dessas unidades, à luz da norma brasileira e de literatura técnica específica, com o objetivo de determinar as falhas de projeto e construção dessa estação. As falhas foram corrigidas e o desempenho da unidade passou a ser satisfatório.
Este trabalho tem por objetivo mostrar a importância de se especificar corretamente a estação de tratamento de água pré-fabricada que se pretende adquirir, à luz da norma brasileira pertinente, de modo a salvaguardar o órgão público da responsabilidade de falhas no desempenho do equipamento.
Palavras-chave: Estação de tratamento de água, reabilitação; floculador mecanizado; decantador tubular; filtros rápidos.
INTRODUÇÃO/OBJETIVOS
Por sua responsabilidade para com as populações a que servem, os órgãos públicos responsáveis pelo abastecimento de água devem assegurar-se de que os diversos componentes desses sistemas atendam ao que dispões às normas brasileiras pertinentes.
O projeto de estações de tratamento de água (ETA) destinadas à produção de água potável para abastecimento público é regido pela NBR 12216, da Associação Brasileira de Normas técnicas – ABNT (ABNT, 1992). Ela estabelece os tipos de equipamentos que devem compor a ETA, além dos parâmetros básicos que devem ser utilizados em cada uma de suas etapas.
Diversos desses parâmetros devem ser adotados através de ensaios a serem realizados durante ensaios de tratabilidade. Entretanto, na ausência desses ensaios, a NBR 12216 estabelece os valores que deverão ser adotados.
Por diversas razões, a ausência de ensaios de tratabilidade é uma realidade enfrentada pelos órgãos públicos ao contratarem projetos de sistemas de abastecimento de água e, especialmente, ao adquirirem estações pré-fabricadas de tratamento de água. Em tais condições, o atendimento aos parâmetros estabelecidos pela citada norma brasileira constitui a única salvaguarda contra falhas no desempenho das ETA’s.
Esta realidade foi enfrentada pela Prefeitura Municipal de Monte Alegre de Minas. Ao ser posta em marcha, uma estação de tratamento de água pré-fabricada, recém-adquirida, através de licitação, destinada a tratar a vazão de 45 litros por segundo (figura 1), apresentou desempenho insatisfatório. Os flocos formados não apresentavam as condições esperadas nas saídas dos floculadores, os decantadores não eram capazes de reter os flocos que lhe eram encaminhados e os filtros precisavam ser lavados com muita frequência.
Procedeu-se à análise detalhada de cada uma dessas unidades, à luz da norma brasileira e de literatura técnica específica. Foi possível determinar que diversas recomendações da NBR 12216 não haviam sido atendidas. As falhas foram corrigidas e o desempenho da unidade passou a ser satisfatório.
MATERIAL E MÉTODOS
Por recomendação da Fundação Nacional de Saúde – FUNASA, o autor foi convidado pela Prefeitura Municipal de Monte Alegre de Minas para diagnosticar a estação de tratamento de água recém adquirida, à luz das normas brasileiras aplicáveis.

Figura 1 – ETA pré-fabricada Q = 45 L/s: planta
O trabalho foi realizado tendo por base a NBR 12216 (ABNT, 1992), com a assistência das coautoras, responsáveis pela operação do equipamento. Foram examinados o floculador mecanizado, o decantador e o filtro, especialmente no que diz respeito aos tempos de detenção, velocidades de sedimentação e taxas de aplicação superficiais.
Outros itens foram também examinados, tendo por base as orientações apresentadas por Vianna (2014), conforme exposto a seguir.
Adequabilidade do equipamento de mistura do floculador mecanizado;
Adequabilidade das passagens entre os compartimentos do floculador mecanizado;
Adequabilidade do sistema de lavagem dos filtros.
RESULTADOS/DISCUSSÃO
Floculador
O floculador era composto de três compartimentos, cada um dos quais com diâmetro igual a 2,50 m e profundidade da lâmina d’água igual a 3,80 m, perfazendo, portanto, um volume útil igual a 56 metros cúbicos.
O tempo de detenção correspondente à vazão de 45 litros por segundo era, portanto, igual a 1244 segundos, ou seja, 20,7 minutos. Este valor foi a primeira não conformidade encontrada, tendo em vista que a recomendação da NBR 12216 para floculadores desse tipo é que ele esteja entre 30 e 40 minutos.
No interior dos compartimentos, os misturadores instalados eram do tipo mostrado na figura 2. Inicialmente fornecidos com diâmetro igual a 0,495 m, foram posteriormente substituídos pelo fabricante por outros de diâmetro igual a 0,595 m como forma de solucionar o problema da má floculação.

Figura 2 – ETA pré-fabricada Q = 45 L/s: misturadores do floculador fornecidos pelo fabricante
Este tipo de equipamento é recomendado para ser instalado em unidades de mistura rápida. Por suas características geométricas (o ângulo de inclinação de suas pás é de 90°), ele não propicia a circulação da água no interior do compartimento.
O misturador alternativo, adequado a compartimentos de floculação, é o mostrado na figura 3. Ele tem suas pás inclinadas e propicia a circulação desejada.

Figura 3 – ETA pré-fabricada Q = 45 L/s: misturadores alternativos para o floculador
O misturador (a) é o apresentado por Parlatore (1974) e Vianna (2014). O misturador (b) é o que tem sido fornecido ultimamente pelos fabricantes desse tipo de equipamento. O dimensionamento de ambos é feito através do mesmo modelo de cálculo, que utiliza a expressão:

em que:
G = gradiente de velocidade desejado, dado em s-1
V = volume do tanque de mistura, dado em m³
m = viscosidade da água, dada em Pa.s
P = potência dissipada na massa líquida, dada em W e determinada através da expressão:
P = Np.n³.ρ.D5
em que:
n = rotação, dada em rotações por segundo
ρ = massa específica da água, dada em kg/m³
D = diâmetro do agitador, dado em metros
Np = número de potência, igual a 1,3 para a turbina da figura (a) e 1,6 para a turbina da figura (b).
É importante ressaltar que, para que os citados valores de Np sejam aplicáveis, as relações geométricas entre o misturador e o tanque de mistura devem obedecer às recomendações apresentadas por Vianna (2015) e Metcalf & Eddy/Aecom (2014), respectivamente.
Desta forma, considerou-se que o item gradiente de velocidade do floculador também estava não conforme.
As interligações entre os compartimentos de floculação eram feitas através de tubos de diâmetro igual a 300 mm, todas localizadas na parte superior dos compartimentos e posicionadas de modo que não permaneciam afogadas, ver figura 4.

Figura 4 – ETA pré-fabricada Q = 45 L/s: passagens de interligação entre os compartimentos do floculador
O exame da figura 4(a) evidencia a forte possibilidade da ocorrência de curto-circuitos, capazes de tornar o tempo de detenção da água em tratamento muito inferior ao tempo médio de detenção hidráulico que se obtém dividindo o volume dos compartimentos pela vazão em tratamento.
Para contornar o problema, a operação local instalou os prolongamentos mostrados na figura 4(b) e na fotografia da figura 4(d).
Entretanto, o diâmetro das interligações, igual a 300 mm, fazia com que o gradiente de velocidade, correspondente à vazão de 45 L/s e a 20°C, atingisse o valor de 85 s-1. Na realidade, este valor era ainda maior, tendo em vista que o escoamento em seu interior não ocorria à seção plena.
Conforme pode ser visto nas figuras 4(a), 4(b) e 4 (e), o não afogamento estendia-se para a interligação do floculador com o decantador. Assim sendo, os flocos eventualmente formados durante a floculação se rompiam nessas passagens.
Em vista de tudo o que foi exposto anteriormente, o floculador foi modificado, passando a assumir a configuração mostrada na figura 4(d). Uma nova câmara de floculação foi acrescentada, fazendo com que o tempo de detenção passasse a ser igual a 1244 s, ou seja, 28 minutos. Este valor é bem próximo aos 30 minutos recomendados pela NBR 12216.
Os misturadores foram substituídos pelo modelo representado na figura 3(b), que passaram a propiciar que todo o volume de cada compartimento fosse efetivamente utilizado para a floculação. O diâmetro dos misturadores foi fixado em 1,00 m e as velocidades de rotação deveriam variar entre 25 e 10 rpm, propiciando gradientes de velocidade entre 65 s-1 e 20 s-1. As velocidades de rotação deveriam ser ajustáveis, através da atuação em inversores de frequência.
As passagens entre os compartimentos foram rebaixadas 1,50 m, tornando-se afogadas, e seu diâmetro foi alterado para 500 mm. O gradiente de velocidade obtido, correspondente à vazão de 45 L/s e a 20°C, passaria a ser igual a 15 s-1.
Decantador tubular
O decantador tubular apresentava a configuração apresentada na Figura 5.

Figura 5 – ETA pré-fabricada Q = 45 L/s: decantador tubular
Os módulos tubulares fornecidos, instalados com inclinação de 60° em relação à horizontal, ver figuras 5 e 6, não atendiam às recomendações da NBR 12216, no que diz respeito às suas relações dimensionais.

Figura 6 – ETA pré-fabricada Q = 45 L/s: módulos tubulares (foto e dimensões)
De acordo com a citada norma, deve-se ter:
L = l/d, superior ou igual a 12, adimensional
l = comprimento do elemento tubular ou da placa, em m
d = diâmetro interno do elemento tubular ou distância entre unidades sucessivas de placas paralelas, em m
Tendo por base as dimensões apresentadas na figura 5(b) e substituindo os valores, encontra-se:
l/d = 0,67/0,80 = 8,375 < 12
não havendo, portanto, conformidade com o que estabelece a citada norma.
Por sua vez, os cálculos realizados utilizando o modelo de Yao e descritos por Vianna (2014) mostraram que o número de módulos assentados não era adequado para que a ETA tratasse a vazão de 45 L/s, conforme mostrado a seguir.
Número de módulos tubulares no interior do decantador: 2520
Vazão por módulo: 45 / 2520 = 0,01786 L/s = 1,786 x 10-5 m³/s
Área da seção transversal de cada módulo: 0,08 x 0,145 = 0,0116 m²
Velocidade média da água no interior de cada módulo: 1,786 x 10-5 / 0,0116 = 1,54 x 10-3 m/s
Utilizando o modelo de Yao e tomando Sc = 11/8, obtém-se:

A NBR 12216 recomenda que essa velocidade esteja entre 25 e 35 m/dia. Assim sendo, o decantador não atende à norma, ultrapassando o valor máximo estabelecido.
Não obstante, em vista da pequena disponibilidade de tempo para a reabilitação da ETA, julgou-se por bem deixar para o futuro a substituição dos módulos tubulares.
O elemento crítico para o funcionamento inadequado do decantador foi identificado como sendo o sistema distribuidor de água floculada sob os módulos tubulares, ver figuras 5 e 7. Ele era constituído por um tubo de diâmetro igual a 300 mm, contendo orifícios em sua parte superior.

Figura 7 – ETA pré-fabricada Q = 45 L/s: duto distribuidor de água floculada sob os módulos tubulares (foto)
Conforme foi visto, o diâmetro de 300 mm impõe o gradiente de velocidade de 85 s-1. Este valor impede a formação de flocos com velocidade de sedimentação adequada. Por sua vez, os orifícios distribuidores apontados para cima faziam com que os flocos, já fragmentados, fossem dirigidos em direção aos módulos, criando caminhos preferenciais e facilitando seu escape.
A falha de distribuição foi constatada pelo fornecedor do equipamento, que providenciou a eliminação do trecho contendo os orifícios, ver figuras 5 e 8.
Esta medida prejudicou a distribuição da água e dos flocos que trazia consigo, visto que toda a vazão era lançada sob os primeiros módulos. Uma grande pluma de pequenos flocos (malformados, devido ao pequeno diâmetro da tubulação de acesso) surgia sobre os módulos próximos à chegada ao decantador, reduzindo-se na medida em que se afastava para jusante.

Figura 8 – ETA pré-fabricada Q = 45 L/s: eliminação, pelo fabricante, do duto distribuidor de água floculada sob os módulos tubulares (foto)
Anotou-se, desta forma, nova desconformidade com a NBR 12216, que estabelece que a distribuição de água floculada no decantador deve ser uniforme ao longo de toda a seção.
O problema foi resolvido com a substituição do tubo originalmente fornecido por um duto de seção quadrada, com área gradualmente decrescente de montante para jusante, que alimentava tubos distribuidores posicionados ao longo de sua extensão, ver figura 9. Esses tubos terminavam em tês posicionados horizontalmente, de modo que os flocos eram dirigidos segundo essa direção. Foram assim eliminados os caminhos diferenciais. Todo o sistema foi dimensionado para que os gradientes de velocidade permanecessem abaixo de 20 s-1 e as velocidades médias no interior do duto e dos tubos não ultrapassassem o mínimo de 0,10 m/s.
Filtros rápidos de areia e antracito
A ETA foi fornecida com duas unidades filtrantes em paralelo, do tipo rápido de gravidade de leito filtrante duplo (areia e antracito), ver figura 1. A lavagem é feita através de sistema dotado de bombas. Cada filtro tem formato cilíndrico, diâmetro igual a 3,00 metros e altura total igual a 3,50 metros. Assim sendo, a taxa média de filtração correspondente é:


Figura 9 – ETA pré-fabricada Q = 45 L/s: novo sistema distribuidor de água floculada
Lamentavelmente não havia como conhecer exatamente a composição do leito filtrante e da camada suporte existentes. Entretanto, os resultados obtidos para a qualidade da água filtrada eram adequados, não obstante a elevada frequência com que necessitam ser lavados.
A lavagem não estava sendo feita de modo adequado, não só devido à especificação equivocada dos conjuntos moto-bomba indicados para esse fim, como também em virtude do posicionamento da calha coletora de água de lavagem. Assim sendo, visualmente os leitos filtrantes não se encontram em bom estado. Foi proposta sua substituição a médio prazo.
A figura 10 representa os dois filtros em planta e a vista lateral de um deles, em que é possível verificar o posicionamento atual da calha coletora de água de lavagem. Este posicionamento não está em conformidade com o que estabelece a NBR 12216, segundo a qual o fundo da calha deverá estar localizado acima e próximo do leito filtrante expandido.

Figura 10 – ETA pré-fabricada Q = 45 L/s: filtros existentes
A figura 11 representa a mesma vista lateral, considerando, entretanto, que as camadas de areia e antracito, que constituem a dupla camada filtrante, tenham sido reinstaladas, utilizando as recomendações da NBR 12216, especialmente quanto às suas profundidades: 0,45 m para o antracito e 0,25 m para a areia.

Figura 11 – ETA pré-fabricada Q = 45 L/s: novo posicionamento da calha coletora de água de lavagem
Observa-se que existe ampla distância vertical para rebaixamento da calha coletora de água de lavagem, cujo fundo foi posicionado, na citada figura, a 0,40 m acima do topo da camada de antracito. Esta distância corresponde a uma expansão de 50% dos leitos de areia e antracito (0,25 m + 0,45 m = 0,70 m; 50% deste valor corresponde, portanto, a 0,35 m) mais 0,15 m de folga.
CONCLUSÃO
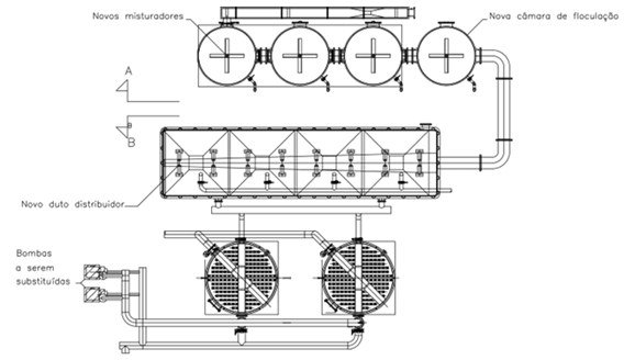
Concluídas as reformas e eliminadas as principais não conformidades, a ETA passou a apresentar a configuração apresentada na figura 12. Ao ser colocada novamente em serviço, as melhorias obtidas na qualidade da água tratada foram imediatas, ver figura 13. Os flocos passaram a apresentar formação adequada e boa sedimentação, enquanto que os filtros passaram a apresentar carreiras superiores a um dia.

Figura 12 – ETA pré-fabricada Q = 45 L/s: configuração após reabilitação

Figura 13 – Qualidade da água decantada antes e após a reabilitação
É importante ressaltar que a maneira adequada de se projetar uma estação de tratamento de água parte do cuidadoso estudo da qualidade da água do manancial e da realização de ensaios de tratabilidade, visando à determinação do tipo de tratamento mais adequado e dos parâmetros a serem adotados no dimensionamento de suas unidades. A NBR 12216 deixa isto muito claro em seu texto.
Não obstante, a experiência tem mostrado que, na ausência de tais ensaios, a adoção dos parâmetros ali fixados permite que, para águas classificáveis até a classe 2, seja possível obter bons resultados para a qualidade da água tratada, capaz de atender ao padrão de potabilidade brasileiro e ao que estabelece o Ministério da Saúde.
Assim sendo, é recomendável que as especificações destinadas à aquisição de estações pré-fabricadas de tratamento de água deixem claro que elas deverão atender ao que estabelece a NBR 12216.
A especificação correta do equipamento não basta por si só. A análise cuidadosa dos projetos ofertados pelos fornecedores; o acompanhamento do fornecimento e da montagem da unidade no local; e acompanhamento atento da partida e pré-operação da unidade – todas estas medidas em conjunto, de preferência supervisionadas por profissional experiente neste campo, evitarão futuras e permanentes dores de cabeça aos responsáveis pelo sistema de abastecimento de água.
Por sua natureza, este trabalho considerou somente aspectos hidráulicos. Entretanto, os cuidados referentes à especificação e análise de ETA’s devem estender-se também aos materiais de construção, aspectos estruturais, de acessibilidade e segurança para o operador em cada uma de suas unidades, no que diz respeito a escadas, passarelas e guarda-corpos, entre outros.
REFERÊNCIAS
ASSOCIAÇÃO BRASILEIRA DE NORMAS TÉCNICAS (1992). NBR 12216 – Projeto de estação de tratamento de água para abastecimento público. Rio de Janeiro: ABNT, 1992. 18p.
METCALF & EDDY / AECOM (2014). Wastewater engineering: treatment and resource recovery. New York: Mc Graw-Hill, 2018p.
PARLATORE, A.C. (1974) – Mistura e floculação; in: CETESB – Técnica de abastecimento e tratamento de água, vol. 2 – São Paulo, CETESB. p.767-815.
VIANNA, Marcos R. (2014). Hidráulica aplicada às estações de tratamento de água. 5 ed. Nova Lima: Imprimatur, 618p.

Deixe um comentário